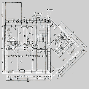
Grundriss Erdgeschoss

Grundriss Erdgeschoss

 


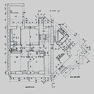
Grundriss Obergeschoss

Grundriss Obergeschoss