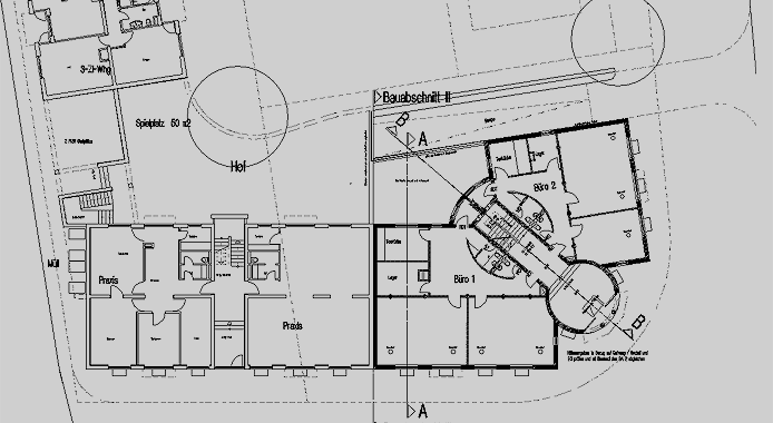
Wohn- und Geschäftshaus, Karlsruhe, 1. und 2. Bauabschnitt (1994 und 1998)

Wohn- und Geschäftshaus, Karlsruhe