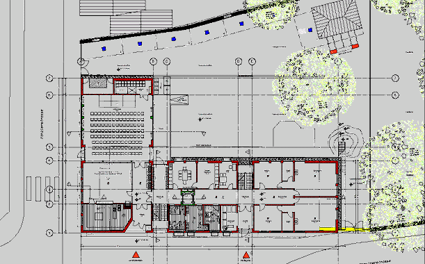
Neubau Katholisches Gemeindezentrum "Christkönighaus" mit Kindergarten: Grundriss EG
Christkönighaus Grundriss Erdgeschoß