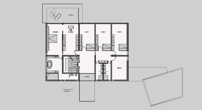
Entwurf eines Wohnhauses in Hamburg: Grundriss 1. Obergeschoß
Wohnhaus Hamburg 1. Obergeschoß