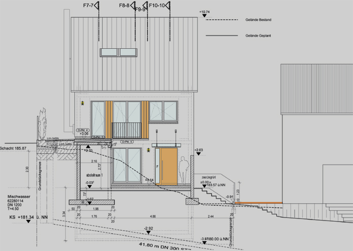
Neubau eines Wohnhauses in Karlsruhe-Durlach: Ansicht Nord-Osten