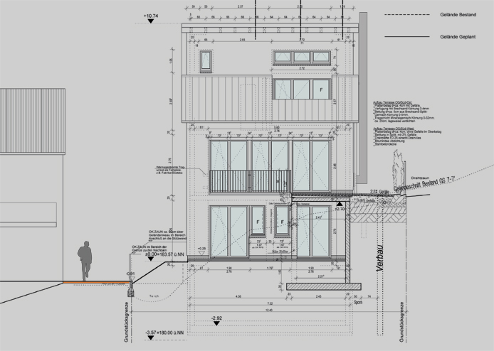
Neubau eines Wohnhauses in Karlsruhe-Durlach: Ansicht Sued-Westen