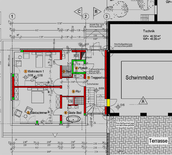
Baueingabe Erweiterung eines Wohnhauses 2008
Wohnhaus Hamburg Lageplan