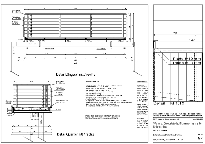
Anbau von Balkonen an ein denkmalgeschütztes Gebäude, Karlsruhe-Durlach 2010