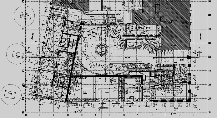
Technisches Rathaus , Karlsruhe

Grundriss EG