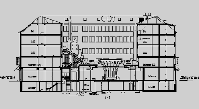
Technisches Rathaus , Karlsruhe

Schnitt