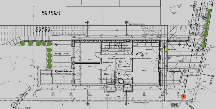
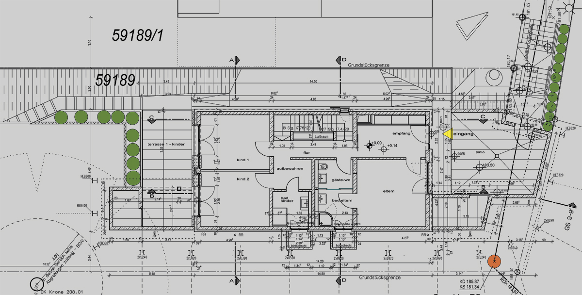
Neubau eines Wohnhauses in Karlsruhe-Durlach: Grundriss EG klicken für grössere Darstellung