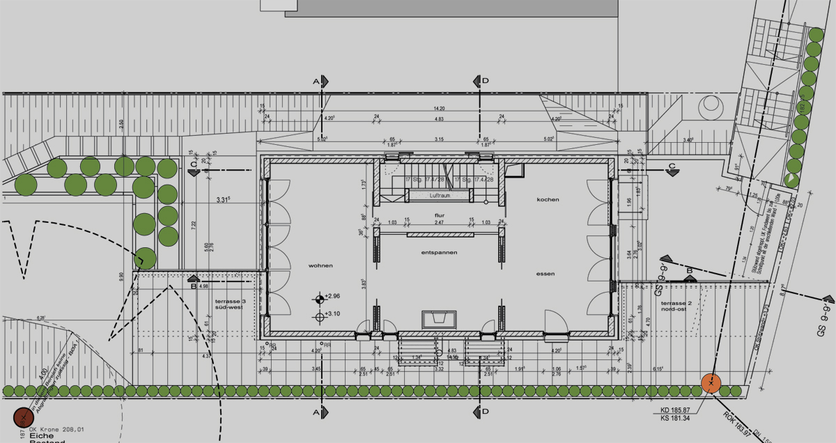
Neubau eines Wohnhauses in Karlsruhe-Durlach: Grundriss OG